- Ab
Mitte der 60er-Jahre wurde damit begonnen,
für einen großen Teil der KEL neue Führungsstellen
zu errichten. Der hauptsächlich genutzte
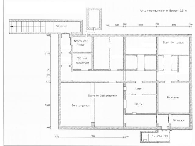
Bunkertyp LP-09, mit einer effektiven
hermetischen Nutzfläche von nur ca.
150 m² konnte das Unterbringungsproblem
der einzelnen KEL-Vorsitzenden und ihrer
Stäbe nur unvollkommen lösen. Aber
er stellte einen guten Kompromiß zwischen Bauaufwand und Schutzgüte dar. Die
Bodenplatte dieser Bauwerke befindet sich etwa 4,5 Meter unter OK Gelände mit
einer Erdüberdeckung von mind. 100 cm. Die Außenmaße liegen bei 15,20 m Länge
und 10,80 m Breite. Die Bauwerke sind im allg. alle gleich aufgebaut. Es soll
über 100 dieser Bauwerke in der DDR gegeben haben.
- Die abgesetzten Funksendestellen
waren teilweise mit Funksendeanlagen
ausgerüstet, die, abgegeben vom Ministerium
für Post- und Fernmeldewesen sowie den
Fernmeldeeinheiten der NVA, schon lange
Jahre eingesetzt und damit verschlissen
waren.
|

Karte von: www.openstreetmap.org
|